1639 Liholiho St
Honolulu, HI 96822
List Price
$1,498,000 (FS)
- Property Type:
- Multi-Family
- Studio Units:
- 0
- 1-Bed Units:
- 1
- 2-Bed Units:
- 2
- 3-Bed Units:
- 0
- Land Area (sf):
- 5,746
- Living (sf):
- --
- Lanai (sf):
- --
- Other (sf):
- --
- MLS #:
- 202427102
- Island:
- Oahu
- Region:
- Metro Oahu
- Neighborhood:
- MAKIKI
- TMK:
- 1-2-4-029-053-0000
- List Date:
REMARKS:
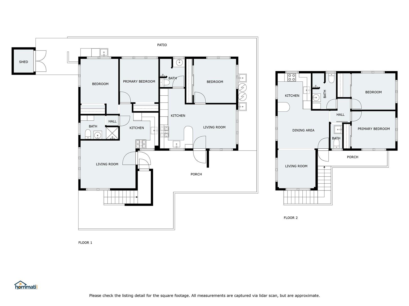
Opportunity knocks! Centrally located 3-unit apartment building with room to grow! 2 bedroom/1.5 bath upstairs, 2 bed/1 bath and a 1 bed/1 bath downstairs. All the units are currently vacant. Lots of extra parking that could be rented to area residents. Building was recently fumigated with 5-year warranty. Units are separately metered for electricity. Trust sale. Sold "As Is" with no repairs or credits. Should qualify for residential conventional financing, buyer to confirm.
PROPERTY INFORMATION:
- Zoning:
- 12 - A-2 Medium Density Apartme
- Furnished:
- --
- Year Built:
- 1957
- Year Remodeled:
- --
FINANCIAL INFORMATION:
- Assd. Val. Land:
- $1,452,400
- Assd. Val. Imprv:
- $71,300
- Assd. Val. Total:
- $1,523,700
- Tax Year:
- 2024
- Monthly Taxes:
- $445
- Home Exempt.:
- --
SCHOOLS:
- Elem. School:
- Lincoln
- Middle School:
- Stevenson
- High School:
- Roosevelt
OTHER PROPERTY FEATURES:
- Frontage:
- Other
- View:
- None
- Pool:
- --
- Amenities:
- Storage
- Inclusions:
- --
- Security:
- --
- Assn. Fee Inclusions:
- --
- Other Fee Inclusions:
- --
- Lot Description:
- Clear
- Topography:
- Level
- Number of Stories:
- Two
- Building Style:
- --
- Property Condition:
- Average, Fair
- Construction:
- Concrete, Wood Frame
- Roofing:
- Composition
- Floor Covering:
- --
- Disclosures:
- Property Disclosure Stmt
- Possession:
- At Closing
- Terms Accept.:
- Cash, Conventional
- Land Recorded:
- Regular System
- Exclusions:
- --
- Easements:
- Other
- Set-Backs:
- Of Record
Based on information from the Multiple Listing Service of HiCentral MLS, Ltd. listings last updated on Thursday, December 4, 2025. Information is deemed
reliable but not guaranteed. Copyright: 2025 by HiCentral MLS, Ltd. Listing courtesy of Forward Realty